Антенная опора (башня связи) типа ST15 Н=15,0 метров
Башня серии ST — представляет собой пространственную конструкцию конструкцию предназначеную для размещения базовых станций мобильной связи, антенн радиорелейных систем связи, теле радиоантенн, навигационных и радарных систем связи
Антенная опора предназначена для размещения базовых станций мобильной связи, антенн радиорелейных систем связи, теле радиоантенн, навигационных и радарных систем связи, перечисленных в рабочей документации ST15-T2-KM.
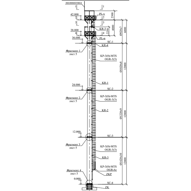
Кол-во типовых секций, шт.: 2
Марки секций: SC-1; SC-2.
Комплектность: согласно ведомости монтажных элементов
Конструктивная форма антенной опоры – свободностоящая.
Антенная опора высотой Н=15,0 метров состоит из унифицированных секций. Верхняя секция SC-1 и нижняя секция SC-2 – треугольная в плане со стороной равностороннего треугольника равного 1,5 м длиной 5,0 м и 10,0 м соответственно. Внутри антенной находится лестница для подъема людей. Параллельно лестнице расположен кабельрост для антенных фидеров и кабелей электропитания. Пояса основных секций изготавливаются из круглых труб, решетка опоры из квадратных труб. Соединения поясов – фланцевые, на болтах. Крепление раскосов к поясам – болтовое.
Башню рекомендуется монтировать методом укрупненной посекционной сборки на земле и последующей установкой в проектное положение методом поворота при помощи крана, либо краном посекционно, в особых случаях допускается использовать вертолет.
Технические решения установки башни в проектное положение рассматриваются в разделе ППР (ППРк) организации подрядчика.
Запрещается, без согласования с разработчиками рабочей документации, производить монтаж и замену оборудования, не предусмотренного рабочей документацией.
Антикоррозийная защита
Все металлоконструкции оцинкованы горячим способом.
Средняя толщина цинкового слоя:
Толщина изделия: > 6 мм – 100 µм;
Толщина изделия: ≥3 мм — < 6 мм – 80 µм;
Толщина изделия: ≥1,5 мм — < 3 мм – 80 µм;
Условия хранения
Для обеспечения сохранности антикоррозионного покрытия, разгрузку металлоконструкций производить с применением текстильных строп на ровную проветриваемую площадку.
Расстояние от земли до поверхности металлоконструкции должно быть не менее 100мм. Не допускается хранение в травяном покрытии и на открытом грунте.
При длительном хранении металлоконструкции должны быть разделены между собой прокладками.
Хранение навалом не допускается.







