Блок контейнер БК-9 (Аппаратная с ДЭС)
Блок-контейнер БК9 АПТ-ДЭС предназначен для монтажа технологического оборудования связи, а также резервного источника электропитания с использованием дизельной электростанции.
Блок-контейнер БК9 АПТ-ДЭС предназначен для монтажа технологического оборудования связи, а также резервного источника электропитания с использованием дизельной электростанции.
Блок-контейнер обеспечивает эксплуатацию оборудования средств связи в диапазоне температур наружного воздуха от минус 40 °С до +40 °С (вид климатического исполнения УХЛ1 по ГОСТ 15150-69).
Основные технические данные Блок-контейнера АПТ-ДЭС приведены в таблице 1
Таблица 1
| Наименование параметра | Значение |
| 1 Обозначение блок-контейнера аппаратная с ДЭС | БК9 АПТ-ДЭС |
| 2 Модель дизель-генераторной установки Дизель Cummins Генератор Leroy-Somer Шкаф управления с контроллером Deif AGC-150 |
ДГУ MGE 16 X1.3TAA-G7 SOL2-M1 ШУ |
| 3 Номинальная мощность ДЭС, кВА/кВт | 20/16 |
| 4 Номинальная частота вращения, об/мин | 1500 |
| 5 Номинальное напряжение, кВ | 0,4 |
| 6 Частота тока, Гц | 50 |
| 7 Степень автоматизации (по ГОСТ 33115-2014) | 3 |
| 8 Категория взрывопожароопасности | В3 |
| 9 Cтепень огнестойкости | IV |
| 10 Класс конструктивной пожарной опасности | С0 |
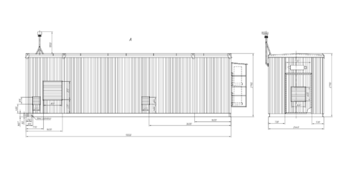
| 11 Габаритные размеры по корпусу Блок-контейнера АПТ-ДЭС (длина х ширина х высота), мм |
9000х2440х2860 |
| 12 Внутренние размеры (длина х ширина), мм, отсек аппаратная — отсек дизельная — тамбур — |
4223х2142 2750х2142 1500х2142 |
| 13 Полезная площадь, м2, отсек аппаратная — отсек дизельная — тамбур — |
9,05 5,89 3.2 |
| 14 Масса блок-контейнера без, кг, не более | ~ 5700 |
| Примечание — Остальные параметры и технические характеристики приведены в паспорте на блок-контейнер АПТ-ДЭС. |
Технические данные оборудования Блок-контейнера АПТ-ДЭС, а также инженерного и иного оборудования, смонтированных в блок-контейнере, приведены в эксплуатационных документах на оборудование.
Основные характеристики
1. Дизель-генераторная установка в контейнерном исполнении обеспечивает:
— стабилизацию выходных электрических параметров (автоматическое регулирование напряжения и частоты);
— автоматизированный пуск и останов с панели управления ДГУ шкафа управления ШУ (c
контроллером AGC-150;
— автоматическое управление пуском и остановом по внешнему сигналу;
— совместно с устройством автоматического ввода резерва АВР в составе силового щита ЩС
(ЩВРА):
автоматический пуск и подключение нагрузки к генератору при исчезновении или отклонении за допустимые пределы напряжения внешней (резервируемой) сети;
автоматический останов и возврат к питанию нагрузки после восстановления напряжения резервируемой сети;
— телесигнализация и телеуправление;
— автоматическое регулирование температуры охлаждающей жидкости;
— автоматическое управление функциями жизнеобеспечения с помощью щита собственных
нужд ЩСН;
— аварийно-предупредительную сигнализацию и аварийную защиту по параметрам ДГУ;
— индикацию значений контролируемых параметров при работе;
— автоматическое поддержание дизель-генератора в готовности к пуску и быстрому приему
нагрузки (подогрев охлаждающей жидкости электронагревателем при питании от сети 220 В);
— автоматический подзаряд аккумуляторных батарей зарядным генератором дизеля, или от
внешней сети с помощью зарядного устройства;
2. Функции жизнеобеспечения и вспомогательной автоматики (в составе блок-контейнера):
— автоматический контроль температуры в отсеках блок-контейнера и управление системой
температурного регулирования с помощью двух сплит-систем, работающих попеременно, системы
вентиляции и системы отопления под управлением контроллера Deif AGC-150 в шкафу управления
ШУ, расширительных блоков и реле в щите собственных нужд ЩСН;
— охранно-пожарная сигнализация и автоматическое газовое пожаротушение;
— выдача сигналов на останов и (или) блокировку запуска ДГУ, закрытие всех воздушных клапанов, отключение сплит-систем, вентиляторов, электропитания цепей обогрева при поступлении
сигнала «Пожар» от средств пожарной сигнализации;
Блок-контейнер АПТ-ДЭС состоит из собственно здания (корпусного контейнера), установленного в нем инженерного оборудования и систем, необходимых для обеспечения функционального назначения в соответствии с проектной документацией, а также обеспечения условий работы оборудования, смонтированного в блок-контейнере.
Блок-контейнер АПТ-ДЭС поставляется в полной заводской готовности.
Блок-контейнер АПТ-ДЭС оснащен следующими системами и оборудованием:
— дизель-генераторная установка (ДГУ);
— система управления, телесигнализации и телеуправления;
— топливная система с дополнительным топливным баком 950 л;
— система электроснабжения;
— система температурного регулирования в отсеках блок-контейнера (сплит-системы, вентиляция, отопление);
— освещение (рабочее, аварийное, наружное);
— система охранно-пожарной сигнализации;
— установка автоматического газового пожаротушения;
— система отвода отработавших газов;
— шкаф управления ШУ с контроллером Deif AGC-150;
— щит силовой ЩС (ЩВРА) с АВР;
— щит собственных нужд ЩСН;
— щит трех земель Щ3-П2;
— ящик ЯТП -0,25 с понижающим трансформатором (с розеткой 12 В);
— внутренняя розеточная сеть (220 В);
— кабельные вводы;
— кабельные лотки;
— внутренняя шина заземления;
— огнетушители;
— персональный компьютер с предустановленным специальным ПО для мониторинга;
— офисные стол, два стула;
— настенный карман для документации;
— дополнительная односкатная крыша;
— съемная лестница;
— защитный козырек над входной дверью;
— ЗИП;
— СИЗ;
— Медицинская аптечка.
Состав и тип оборудования блок-контейнера АПТ-ДЭС определяются договором на поставку (проектной документацией) и указаны в паспорте на блок-контейнер ДЭС и соответствующих разделах эксплуатационной документации.
Возможно изготовление блок-контейнера на заказ по Вашим требованиям.
| Габариты | 900 × 244 × 284 см |
|---|










