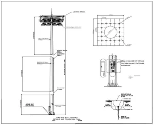
Проектирование мачт молниеотводов

Проектированию комплексной системы и мачты молниеотвода
Подготовка
Сбор исходных данных для обследования и составление акта для дальнейшего согласования
Проектирование
Разработка проекта, назначение экспертиз, согласование в органах надзора, уведомление заказчика.
Сдача заказчику
Сдача готового проекта заказчику. Планирование производства и обсуждением возможности монтажа.
Внутренняя система молниеотвода
Внутренняя система молниеотвода должна иметь соответствующую установку, защиту от перенапряжения, а также другие меры для сведения к минимуму разрушительного воздействия молнии (уравнивание потенциалов, экранирование и т. д.).

Закажите проектирование мачты молниеотвода в Белмаст
Просто позвоните нам по телефону
+7 (4812) 229-339
или напишите на почту
Sale@belmast.ru
Наружное освещение — это освещение, обеспечивающее достаточную видимость на дорогах и улицах в темное время суток.
Стандарты молниезащиты определяют процедуру расчета индекса риска конструкции для определения необходимой установки системы молниезащиты (СМЗ) и уровня защиты, который она должна обеспечивать.
Уровень молниезащиты СМЗ учитывает как параметры тока молнии, так и вероятность непревышения максимального и минимального расчетных значений в случае грозы. Эти максимальные и минимальные значения используются для определения размеров элементов СМЗ (толщина металлических листов, токовая нагрузка разрядников, разделительные расстояния от опасных искр), для параметров испытаний и для размещения датчиков СМЗ.
Заземление
Система заземления является обязательным элементом внешней системы молниезащиты, отвечающей за рассеивание тока молнии в землю. Правильное функционирование системы заземления зависит от проводимости земли. Эта проводимость в основном электролитическая по своей природе из-за солей, диспергированных в воде, которая ее пропитывает. Следовательно, его можно увеличить, улучшив водопоглощающую и удерживающую способность и увеличив концентрацию растворимых солей.
От технического обзора до обширного обследования объекта, инженеры ГК Белмаст смогут помочь вам определить наиболее эффективную систему молниеотвода для вашего объекта.
Наш процесс проектирования молниеотвода выглядит следующим образом:
- Проводится техническая проверка и оценка рисков.
Потенциально на основе фотографий, чертежей и строительных планов, предоставленных клиентом. Это дает базовые рекомендации по защите, которые позволят разработать первоначальный проект того, что потребуется вашему объекту. - Определение потребности в защите.
После выполнения оценки риска, предоставления точных данных, у вас должно быть несколько вариантов ресурсов молниеотводов.
Вот несколько возможностей:- Здание или сооружение безопасно, никакой защиты не требуется.
- Строительная конструкция или определенные зоны нуждаются во внешней защите.
- Зданию или сооружению необходима внутренняя защита и защита от перенапряжений.
- Здание или сооружение нуждается как во внутренней, так и во внешней защите.
- Исследование дизайна.
Порядок исследования следующий:- Укажите уровень защиты для каждой зоны.
- Предоставьте общие схемы устройств защиты от перенапряжения (SPD) в различных зонах молниезащиты.
- При наличии каких-либо трехмерных типов соединительных сетей, необходимых для обеспечения экранирующих эффектов от электромагнитных помех.
- Все вышеуказанные факторы должны быть указаны в соответствии с отраслевыми стандартами и требованиями.
- Обследование площадки и интеллектуальное наземное тестирование.
Для этого требуется инженер по молниезащите. Это заключительный этап в разработке решения, адаптированного к вашим требованиям к молниезащите, и включает в себя все аспекты анализа рисков и проектирования молниезащиты для создания подробных технических чертежей и системных спецификаций. Smart Ground Testing — это усовершенствованная система аудита защиты грунта, которая дает очень точные результаты даже для систем, находящихся под напряжением. В отличие от традиционных тестов, Smart Ground использует сложное компьютерное моделирование, включает полный профессиональный анализ в соответствии со стандартами IEEE/IEC и предоставляет практические рекомендации по улучшению вашей системы заземления и молниезащиты. - Установка и настройка.
После завершения проектирования осуществляется полный комплекс услуг по установке с соответствующими гарантиями.
ГК Белмаст занимается проектированием и установкой молниезащиты уже более 10 лет. Мы можем разработать надлежащую защиту для вашего объекта в соответствии с вашими техническими требованиями.
Поскольку молния имеет тенденцию поражать самый высокий объект поблизости, стержни обычно размещают на вершине конструкции и вдоль ее гребней ; они соединены с землей кабелями с низким импедансом. В случае здания почва используется в качестве земли; на корабле используется вода.
Громоотвод требует надлежащего заземления для эффективного и безопасного рассеивания большого количества энергии от удара молнии. Отсутствие надлежащего заземления приведет к тому, что громоотвод станет неэффективным, что приведет к повреждению имущества и риску для жизни человека.
- Тестирование сопротивления.
- Тестирование непрерывности.
- Испытание сопротивления грунта.
- Визуальный осмотр.



